Arti Homes Rab

Arti Studio 1

Svaka home kućica opremljena je suvremenim sadržajima, gdje ćete pronaći udoban dnevni boravak, funkcionalnu kuhinju, modernu kupaonicu i udobne spavaće sobe. Prostor oko kućice pruža vam privatnost i mogućnost uživanja na vlastitoj terasi sa sjedećom garniturom, idealnoj za opuštajuće večeri uz zalazak sunca ili jutarnju kavu.

Površina smještaja

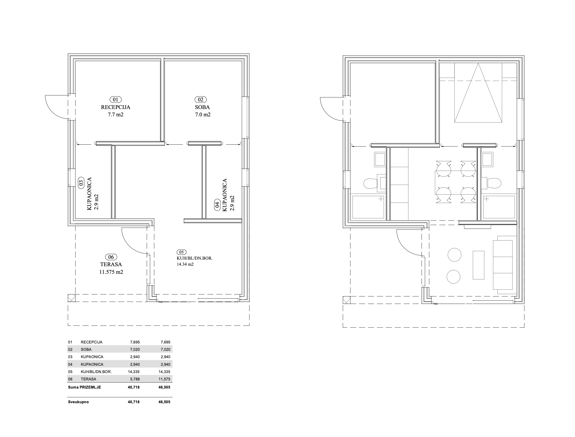
Smještajna jedinica Arti Studio 1 veličine je 35 kvadratnih metara.

Broj osoba

Smještajna jedinica potpuno je opremljena za boravak dvije odrasle osobe.

Info

zašto rab?

O smještaju

 

Arti Studio 1 veličine je 35 kvadratnih metara i pogodan je za smještaj do tri osobe.

Kućica je klimatizirana i ima prostranu, natkrivenu terasu s pripadajućim ležaljkama, vlastitim parkiralištem te vrtom.

Vanjski sadržaj: terasa površine 15 m2

Arti Studio 1 sadrži dnevni boravak s sofom na razvlačenje + LCD TV sa satelitskom televizijom, potpuno opremljenu kuhinju, 1 sobu s bračnim krevetom i vlastitom kupaonom. Kuhinja je opremljena s hladnjakom s zamrzivačem, perilicom suđa, mikrovalnom pećnicom, električnim kuhalom za vodu, aparatom za filter kavu i ugradbenom indukcijskom pločom.

Detalji

Broj soba

Dnevni boravak sa sofom na razvlačenje + TV,  spavaća soba s francuskim krevetom i ormarom.

Broj osoba

Arti Studio 1 svojom površinom i opremljenošću namijenjen je za boravak do tri osobe.

Broj kupaonica

Smještaj Arti Studio 1 sadrži jednu kupaonicu.

Vanjski sadržaji

Okoliš smještajne jedinice čini vrlo prostrana natkrivena terasa površine 15 kvadratnih metara s pripadajućim ležaljkama, vlastito parkiralište.

Opremljenost kuhinje

Kuhinja je opremljena s hladnjakom s zamrzivačem, perilicom suđa, mikrovalnom pećnicom, električnim kuhalom za vodu, aparatom za filter kavu i ugradbenom indukcijskom pločom.

Blizina plaže

Na samo nekoliko minuta od smještajne jedinice Arti Studio 1 nalaze se brojne prirodne plaže.

Besplatan wi-fi

Želite li podijeliti svoj savršen odmor sa svojim prijateljima i bližnjima na raspolaganju vam stoji potpuno besplatno korištenje naše Wi-Fi mreže.

ostali sadržaji

Arti Studio 1 krasi luksuzno unutarnje uređenje i potpuna klimatizacija prostora.

Zašto otok Rab ?

Ne propustite istražiti sve o jednoj od najpopularnijih turističkih destinacija na prekrasnom Jadranskom moru. Pronađite korisne informacije i upoznajte se s ovim jedinstvenim otokom kako bi vaš boravak na Rabu bio što kvalitetniji !

Otok ljubavi i sreće

Otok Rab

Otok Rab mjesto je bogate kulturne povijesti i prirodnih ljepota koje se godinama svrstava među najposjećenije turističke destinacije na Jadranu a nedavno se pronašao na listi najljepših otoka na svijetu po izbori magazina Showbizz Daily, zauzevši visoko treće mjesto ! 

više od 30 pješčanih plaža

Pješčani raj

Otok Rab popularna je kupališta destinacija na Jadranskom moru a broji preko 30 prirodnih pješčanih plaža – otkrijte one koje se nalaze u neposrednoj blizini našeg smještaja !